Sabe aquela sensação de liberdade que dá quando a gente conquista o nosso cantinho? Pois é, ter um apê ou casa de um quarto é o sonho de muita gente! Mas aí surge a dúvida: qual o tamanho ideal? Fica tranquila, porque vou te mostrar tudo sobre as medidas padrão e como aproveitar cada centímetro do seu lar!
Afinal, o que Define uma Casa de 1 Quarto?
Uma casa ou apartamento de um quarto é, basicamente, um imóvel que possui um dormitório, sala, cozinha e banheiro. O tamanho pode variar bastante, dependendo da cidade, do tipo de construção e, claro, do seu bolso! Mas, em geral, o que importa é que seja um espaço funcional e aconchegante para você.
O bacana de um espaço assim é a praticidade e a facilidade de manter tudo organizado. Além disso, é perfeito para quem mora sozinho ou para casais que estão começando a vida juntos. Vamos combinar, não tem nada melhor do que ter um lar que seja a sua cara, né?
Descobrindo as Medidas Ideais para Cada Ambiente
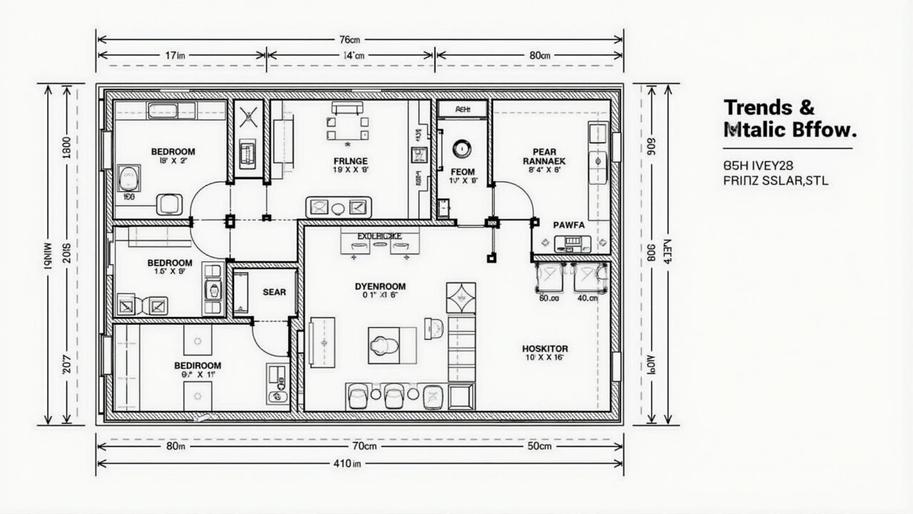
Agora que você já sabe o que é uma casa de um quarto, vamos às medidas! É importante lembrar que não existe uma regra rígida, mas sim algumas recomendações para garantir o conforto e a funcionalidade de cada ambiente.
Qual a metragem mínima para uma casa de 1 quarto ser confortável?

Eu diria que, para ter um espaço confortável, o ideal é que a casa ou apartamento tenha, no mínimo, 30 metros quadrados. Assim, você consegue distribuir os móveis de forma inteligente e ter espaço para circular sem se sentir apertada. Imagina só, ter um cantinho para relaxar depois de um dia cansativo, sem esbarrar em tudo!
Lembre-se que essa é uma sugestão! Se você é do tipo minimalista e não precisa de muito espaço, um imóvel menor pode ser perfeito. O importante é que atenda às suas necessidades e te faça feliz!
Medidas padrão para sala de estar em casa de 1 quarto

A sala de estar é o coração da casa, né? É onde a gente recebe os amigos, assiste a um filme e relaxa no fim do dia. Para uma casa de um quarto, uma sala com cerca de 9 a 12 metros quadrados é suficiente. Dá para colocar um sofá confortável, uma TV e até uma mesinha de centro.
Uma dica que eu sempre dou é investir em móveis multifuncionais. Sabe aquele sofá-cama que vira um cantinho extra para os hóspedes? Ou aquela estante com nichos para guardar livros e objetos decorativos? São ótimas opções para otimizar o espaço e deixar tudo mais organizado.
Tamanho ideal para cozinha em apartamentos de um quarto

A cozinha pode ser compacta, mas precisa ser funcional! Em apartamentos de um quarto, uma cozinha com 4 a 6 metros quadrados já é suficiente para preparar suas refeições. O importante é ter espaço para a pia, o fogão, a geladeira e alguns armários para guardar os utensílios.
Se você gosta de cozinhar, vale a pena investir em uma bancada com banquetas. Além de servir como mesa de jantar, ela também pode ser usada como apoio para preparar os alimentos. E não se esqueça da iluminação! Uma boa iluminação faz toda a diferença na hora de cozinhar e deixa o ambiente mais agradável.
Dimensões recomendadas para o quarto de solteiro em casas pequenas

O quarto é o nosso refúgio, né? É onde a gente descansa, lê um livro e recarrega as energias. Em casas pequenas, um quarto de solteiro com 8 a 10 metros quadrados é o ideal. Dá para colocar uma cama, um guarda-roupa e uma escrivaninha para estudar ou trabalhar.
Para otimizar o espaço, aposte em prateleiras e nichos nas paredes. Eles são ótimos para guardar livros, objetos decorativos e até mesmo roupas. E não se esqueça do espelho! Além de ajudar na hora de se arrumar, ele também dá a sensação de amplitude ao ambiente.
Qual o tamanho mínimo para um banheiro funcional em casa de um quarto?

O banheiro pode ser pequeno, mas precisa ser funcional! Em casas de um quarto, um banheiro com 3 a 4 metros quadrados já é suficiente para ter tudo o que você precisa: vaso sanitário, pia e chuveiro. O importante é escolher os acessórios certos para otimizar o espaço.
Uma dica que eu adoro é usar nichos embutidos na parede para guardar os produtos de higiene pessoal. Eles são ótimos para organizar tudo e deixar o banheiro mais clean. E não se esqueça do espelho com armário! Além de ajudar na hora de se maquiar, ele também oferece espaço extra para guardar os seus produtos de beleza.
Tamanho de área de serviço ideal para casas de um dormitório

A área de serviço nem sempre é prioridade, mas é importante ter um espaço para lavar e secar as roupas. Em casas de um dormitório, uma área de serviço com 2 a 3 metros quadrados já é suficiente. O importante é ter espaço para a máquina de lavar, o tanque e um varal.
Se você não tem muito espaço, vale a pena investir em uma máquina de lavar e secar roupas. Assim, você economiza espaço e tempo! E não se esqueça de organizar os produtos de limpeza em prateleiras ou armários para deixar tudo mais organizado.
Existe um padrão de tamanho para varandas em apartamentos de 1 quarto?

A varanda é um espaço delicioso para relaxar e aproveitar a vista, né? Em apartamentos de um quarto, o tamanho da varanda pode variar bastante, mas o ideal é que tenha pelo menos 3 metros quadrados. Assim, você consegue colocar uma mesinha com cadeiras e algumas plantas para criar um ambiente agradável.
Se você tem uma varanda pequena, aposte em plantas suspensas e móveis dobráveis. Eles são ótimos para otimizar o espaço e deixar a varanda mais funcional. E não se esqueça da iluminação! Uma boa iluminação faz toda a diferença na hora de relaxar e aproveitar a varanda à noite.
Como calcular a área total de uma casa de 1 quarto corretamente?

Para calcular a área total de uma casa de um quarto, basta somar a área de todos os cômodos: sala, cozinha, quarto, banheiro, área de serviço e varanda (se houver). É importante ter essa informação na hora de comprar ou alugar um imóvel, pois ela influencia no valor do IPTU e do condomínio.
Além disso, a área total também é importante para planejar a decoração e a distribuição dos móveis. Assim, você consegue aproveitar cada centímetro do seu lar e criar um ambiente funcional e aconchegante.
Quais as medidas de garagem mais adequadas para casas de um quarto?

Se você tem carro, é importante ter uma garagem para guardá-lo com segurança. Em casas de um quarto, uma vaga de garagem com 2,5 metros de largura e 5 metros de comprimento é suficiente para a maioria dos carros. Mas, se você tem um carro grande, vale a pena verificar se a vaga é adequada.
Além disso, é importante verificar se a garagem é coberta e se possui portão automático. Assim, você garante a segurança do seu carro e evita transtornos na hora de estacionar.
Como as medidas de um loft de 1 quarto se comparam a uma casa padrão?
Os lofts de um quarto geralmente possuem um conceito mais aberto, com a sala, a cozinha e o quarto integrados em um único ambiente. Isso pode dar a sensação de amplitude, mas também exige um planejamento cuidadoso da decoração para delimitar os espaços.
Em termos de medidas, os lofts costumam ter uma área total um pouco maior do que as casas de um quarto padrão, justamente por conta desse conceito aberto. Mas o importante é que o espaço seja funcional e atenda às suas necessidades.
Como as medidas de uma kitnet de 1 quarto se comparam a uma casa padrão?
As kitnets são ainda menores do que as casas de um quarto padrão, com todos os cômodos integrados em um único ambiente. Geralmente, possuem apenas um banheiro separado. São perfeitas para quem mora sozinho e não precisa de muito espaço.
Por serem tão compactas, as kitnets exigem um planejamento ainda mais cuidadoso da decoração. É importante investir em móveis multifuncionais e em soluções de organização para aproveitar cada centímetro do espaço.
Onde encontrar plantas de casas de 1 quarto com medidas detalhadas?
Se você está pensando em construir ou reformar uma casa de um quarto, é fundamental ter uma planta com as medidas detalhadas de cada cômodo. Você pode encontrar plantas de casas de um quarto em sites especializados em arquitetura e decoração, em revistas do setor ou contratar um arquiteto para criar um projeto personalizado.
Uma dica que eu sempre dou é pesquisar bastante e se inspirar em projetos já existentes. Assim, você consegue ter uma ideia do que funciona melhor para você e criar um espaço que seja a sua cara!
Qual a importância de considerar o pé direito ao definir as medidas da casa?
O pé direito, que é a altura entre o piso e o teto, também é um fator importante a ser considerado ao definir as medidas da casa. Um pé direito mais alto pode dar a sensação de amplitude e valorizar a iluminação natural, enquanto um pé direito mais baixo pode deixar o ambiente mais aconchegante.
Em casas de um quarto, o ideal é que o pé direito tenha pelo menos 2,5 metros de altura. Mas, se você tem um estilo mais moderno e gosta de ambientes amplos, pode optar por um pé direito duplo, que geralmente tem entre 5 e 6 metros de altura.
Como adaptar as medidas padrão para casas de 1 quarto com acessibilidade?
Se você ou alguém da sua família possui alguma dificuldade de locomoção, é importante adaptar as medidas da casa para garantir a acessibilidade. Isso inclui aumentar a largura das portas e corredores, instalar barras de apoio no banheiro e na cozinha e utilizar rampas em vez de escadas.
Além disso, é importante planejar a distribuição dos móveis de forma a facilitar a circulação e evitar obstáculos. Assim, você garante o conforto e a segurança de todos os moradores.
Planilha Resumo: Medidas Padrão para Casa de 1 Quarto
Ambiente | Metragem Mínima (m²) | Observações |
---|---|---|
Total | 30 | Garante conforto e boa distribuição dos móveis |
Sala de Estar | 9-12 | Espaço para sofá, TV e mesa de centro |
Cozinha | 4-6 | Espaço para pia, fogão, geladeira e armários |
Quarto | 8-10 | Espaço para cama, guarda-roupa e escrivaninha |
Banheiro | 3-4 | Espaço para vaso sanitário, pia e chuveiro |
Área de Serviço | 2-3 | Espaço para máquina de lavar, tanque e varal |
Varanda | 3 (mínimo) | Espaço para mesa, cadeiras e plantas |
Garagem | 2,5m x 5m | Vaga padrão para a maioria dos carros |
Minhas Dicas Especiais para Otimizar o Espaço!
- Móveis Multifuncionais: Invista em móveis que podem ser usados de diversas formas, como sofás-cama, mesas dobráveis e camas com gavetas.
- Prateleiras e Nichos: Utilize prateleiras e nichos para organizar livros, objetos decorativos e até mesmo roupas. Eles são ótimos para aproveitar o espaço vertical.
- Espelhos: Utilize espelhos para dar a sensação de amplitude ao ambiente. Eles são perfeitos para quartos e banheiros pequenos.
- Cores Claras: Pinte as paredes com cores claras para deixar o ambiente mais iluminado e espaçoso.
- Organização: Mantenha a casa sempre organizada para evitar a sensação de bagunça e otimizar o espaço.
Dúvidas das Leitoras (FAQ)
Qual o tamanho mínimo de uma janela em um quarto de 10m²?
A área da janela deve ser, no mínimo, 1/6 da área do piso para garantir boa iluminação e ventilação. Em um quarto de 10m², a janela deve ter pelo menos 1,67m².
É possível ter um closet em uma casa de 1 quarto pequena?
Sim, é possível! Utilize prateleiras, nichos e araras abertas para criar um closet compacto e funcional. Otimize o espaço vertical com organizadores.
Qual a melhor cor para pintar um apartamento de 1 quarto pequeno?
Cores claras como branco, bege e tons pastel são ideais para ampliar o espaço e refletir a luz natural. Você pode adicionar toques de cor com objetos decorativos.
Como dividir ambientes em um loft de 1 quarto?
Utilize estantes vazadas, biombos ou cortinas para delimitar os espaços sem comprometer a integração. Tapetes também ajudam a definir áreas.
Qual o tipo de piso ideal para uma casa de 1 quarto?
Pisos claros como porcelanato, laminado ou vinílico são ótimos para ampliar o espaço e são fáceis de limpar. Escolha um material resistente e durável.
Como aproveitar o espaço embaixo da cama em um quarto pequeno?
Utilize caixas organizadoras, gavetas ou um baú para guardar roupas de cama, sapatos ou outros objetos. Otimize cada cantinho!
Para não esquecer: Ao planejar as medidas da sua casa de um quarto, lembre-se de priorizar o seu conforto e as suas necessidades. Não tenha medo de ousar e criar um espaço que seja a sua cara!