Já pensou em ter a casa dos seus sonhos, cada cantinho do jeitinho que você sempre quis? A planta de casa arquitetônica é o mapa que te guia nessa jornada! Com ela, você visualiza o projeto antes de começar a construir, evitando surpresas desagradáveis e garantindo que tudo saia perfeito. Vamos juntas descobrir como?
O Que é uma Planta de Casa Arquitetônica?
Imagina que a planta de casa arquitetônica é como uma receita detalhada para construir seu lar. Ela é um desenho técnico, feito por um arquiteto, que mostra exatamente como a casa vai ser: onde ficam as paredes, portas, janelas, cada cômodo e até a área externa. É como ter um “manual de instruções” para a sua construção!
Com uma planta bem feita, você evita gastos extras, otimiza o espaço e garante que a casa fique funcional e linda. É o primeiro passo para transformar seu sonho em realidade, sem dor de cabeça! E fica tranquila, vamos descomplicar esse processo juntas!
Por Que Investir em uma Planta de Casa Arquitetônica?
Ter uma planta de casa arquitetônica é como ter um seguro para a sua construção. Ela te protege de imprevistos e garante que tudo saia como planejado. Veja algumas vantagens:
Economia Inteligente

Sabe aquela história de “o barato sai caro”? Na construção, isso é superverdade! Uma planta bem feita evita erros na obra, o que significa menos gastos com retrabalho e materiais desperdiçados. Imagina a economia!
Visualização Total do Projeto

Com a planta, você consegue ver a casa pronta antes mesmo de começar a construir. Isso te permite fazer ajustes, mudar detalhes e garantir que o resultado final seja exatamente o que você imaginou. Nada de surpresas desagradáveis!
Valorização do Imóvel

Uma casa com projeto arquitetônico profissional é muito mais valorizada no mercado. Afinal, ela demonstra cuidado, planejamento e qualidade. É um investimento que se paga!
Conformidade com as Normas

Construir dentro da lei é fundamental para evitar problemas futuros. A planta arquitetônica garante que a sua casa esteja de acordo com as normas municipais e os padrões de segurança. Fica tranquila, tudo certinho!
Planejamento Inteligente do Espaço

Cada cômodo da sua casa deve ser funcional e confortável, certo? A planta arquitetônica te ajuda a planejar o espaço de forma inteligente, aproveitando cada cantinho e criando ambientes agradáveis para o dia a dia.
Elementos Essenciais de uma Planta de Casa Arquitetônica
Para ser completa e eficiente, a planta de casa arquitetônica precisa ter alguns elementos básicos. Anota aí:
- Medidas Exatas: Dimensões de cada cômodo, paredes, portas e janelas.
- Cotas e Níveis: Altura do piso, teto e outros detalhes importantes.
- Setorização: Divisão dos espaços em áreas sociais, íntimas e de serviço.
- Legenda e Escala: Para que qualquer pessoa possa entender o projeto.
Tipos de Plantas Arquitetônicas: Qual a Ideal para Você?
Existem diferentes tipos de plantas arquitetônicas, cada uma com uma função específica. Conheça as principais:
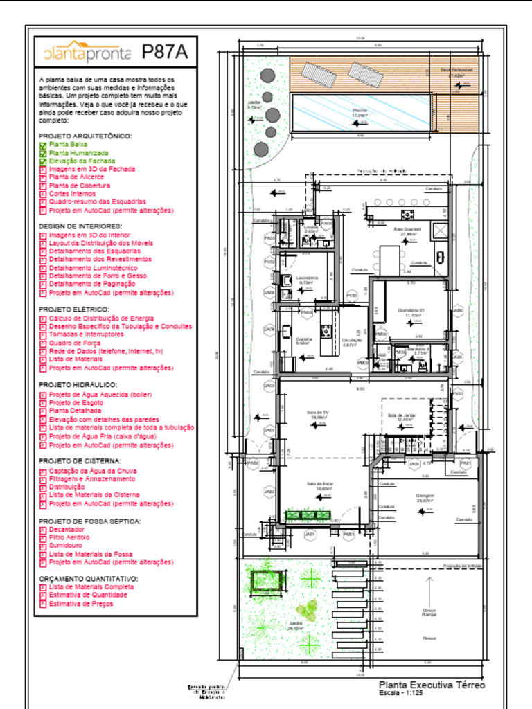
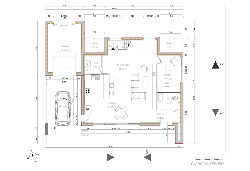
Planta Baixa: O Coração do Projeto

É a planta mais importante, que mostra a casa vista de cima, com a distribuição dos cômodos, a circulação e as áreas externas. É como se você estivesse olhando para a casa sem o telhado. Essencial para começar qualquer projeto!
Planta de Cortes: Uma Visão Vertical

Essa planta mostra a casa “cortada” ao meio, revelando a altura dos ambientes, o pé-direito e os diferentes níveis do piso. É importante para entender a volumetria da construção.
Planta de Fachada: A Beleza Exterior
A planta de fachada apresenta a vista externa da casa, mostrando as portas, janelas, o telhado e o acabamento. É importante para visualizar o estilo arquitetônico da construção.
Planta Humanizada: A Casa Ganha Vida
Essa planta é como uma “simulação” de como a casa vai ficar depois de pronta. Ela inclui móveis, texturas, cores e outros detalhes que ajudam a visualizar o resultado final. É perfeita para quem tem dificuldade de imaginar o espaço!
Como Criar uma Planta de Casa Arquitetônica: Passo a Passo
Criar uma planta de casa arquitetônica pode parecer complicado, mas com as dicas certas, você vai ver que não é tão difícil assim. Vamos lá:
- Defina Suas Necessidades: Quantos quartos você precisa? Quantos banheiros? Você quer uma área de lazer? Pense em tudo o que é importante para você e sua família.
- Escolha o Estilo Arquitetônico: Moderno, rústico, minimalista, clássico… Qual estilo te encanta mais? A escolha do estilo vai influenciar em todos os detalhes da casa.
- Contrate um Arquiteto: Esse é o passo mais importante! Um profissional qualificado vai te ajudar a transformar suas ideias em realidade, garantindo que o projeto seja seguro, funcional e esteticamente agradável.
- Acompanhe o Projeto de Perto: Não deixe o arquiteto trabalhar sozinho! Participe das reuniões, revise cada detalhe e faça ajustes sempre que necessário. Afinal, a casa é sua!
- Use a Tecnologia a Seu Favor: Softwares de desenho 3D e plantas humanizadas te ajudam a visualizar o projeto de forma realista, facilitando a tomada de decisões.
Benefícios de um Projeto Arquitetônico Profissional: Vale a Pena o Investimento?
Com certeza! Um projeto arquitetônico profissional vai muito além de um simples desenho. Veja os benefícios:
- Otimização do Terreno: O arquiteto sabe como aproveitar cada metro quadrado disponível, criando espaços funcionais e agradáveis.
- Eficiência Energética: Um bom projeto considera a iluminação natural e a ventilação, reduzindo o consumo de energia e tornando a casa mais sustentável.
- Segurança Estrutural: O arquiteto garante que a construção seja segura e resistente, evitando problemas futuros.
- Valorização do Imóvel: Já falamos sobre isso, mas não custa repetir: um projeto bem feito valoriza o seu imóvel!
Dicas Extras para Ter a Planta de Casa Ideal
Para garantir que a sua planta de casa seja perfeita, siga estas dicas extras:
- Priorize a Funcionalidade: Pense no dia a dia da sua família e crie espaços que facilitem a rotina.
- Aproveite a Iluminação Natural: Janelas e portas bem posicionadas fazem toda a diferença!
- Pense no Futuro: Planeje espaços que possam ser ampliados, caso você precise de mais espaço no futuro.
- Invista em Tecnologia: Plantas humanizadas e maquetes digitais te ajudam a visualizar o projeto e tomar decisões mais assertivas.
Tabela Facilitadora: Resumo dos Tipos de Planta
| Tipo de Planta | Descrição | Utilidade |
|---|---|---|
| Planta Baixa | Vista superior da casa, mostrando a distribuição dos cômodos. | Essencial para o planejamento inicial e visualização do layout. |
| Planta de Cortes | Visão vertical da casa, mostrando a altura dos ambientes. | Importante para entender a volumetria e os níveis da construção. |
| Planta de Fachada | Vista externa da casa, mostrando o estilo arquitetônico. | Ajuda a visualizar a aparência final da construção. |
| Planta Humanizada | Planta com móveis, texturas e cores, simulando o resultado final. | Facilita a visualização do espaço e a tomada de decisões sobre decoração. |
Dúvidas Frequentes Sobre Planta de Casa Arquitetônica (FAQ)
Qual a diferença entre planta baixa e planta arquitetônica?
A planta baixa mostra apenas a distribuição dos cômodos, enquanto a planta arquitetônica inclui detalhes estruturais, fachadas e cortes da construção. É bem mais completa!
Quanto custa uma planta de casa arquitetônica?
O valor varia de acordo com o tamanho do imóvel, a complexidade do projeto e a experiência do arquiteto. Mas, olha, investir em um projeto completo evita gastos maiores na obra, viu?
Posso fazer a planta sozinho?
Embora seja possível, um projeto profissional garante conformidade com normas técnicas, segurança e funcionalidade. Eu super recomendo contratar um arquiteto!
O que é planta humanizada?
É uma versão da planta arquitetônica que inclui móveis, cores e texturas, ajudando a visualizar o resultado final da construção. É como ver a casa decorada antes mesmo de construir!
Quanto tempo leva para criar uma planta arquitetônica?
Depende do tamanho do imóvel e da complexidade do projeto, geralmente entre 2 a 6 semanas. Converse com o arquiteto para ter uma estimativa mais precisa.
Quais softwares posso usar para visualizar a planta em 3D?
Existem várias opções! SketchUp, Revit e Archicad são alguns dos mais populares. Muitos arquitetos usam esses programas para criar plantas 3D incríveis!
Como escolher o arquiteto ideal para o meu projeto?
Pesquise, veja portfólios, peça indicações e converse com diferentes profissionais. Escolha um arquiteto que entenda suas necessidades e que tenha um estilo que te agrade. Confiança é tudo!
É possível usar um modelo de planta pronta?
Sim, mas é importante adaptá-lo às suas necessidades e ao seu terreno. Um arquiteto pode te ajudar a fazer essas adaptações, garantindo que a casa fique perfeita para você.
Para não esquecer:
Lembre-se que a planta de casa arquitetônica é o guia para construir a casa dos seus sonhos. Invista em um projeto completo e conte com a ajuda de um profissional qualificado. Assim, você evita surpresas desagradáveis e garante que tudo saia perfeito!
E aí, pronta para começar a planejar a sua casa dos sonhos? Compartilhe suas ideias e dúvidas nos comentários! Adoro trocar ideias sobre construção e decoração! E não se esqueça de procurar um profissional da área para te ajudar, combinado?

