Já pensou em como um pé direito duplo pode transformar completamente a atmosfera da sua casa? Não é só uma questão de estética, viu? Ele traz amplitude, iluminação natural e até valoriza o imóvel. Se você está pensando em construir ou reformar, essa pode ser a cereja do bolo! Vem comigo que eu te conto tudo sobre essa maravilha arquitetônica.
O Que É Pé Direito Duplo e Por Que Ele Faz Tanto Sucesso?
Pé direito duplo, nada mais é que uma altura maior que o padrão entre o piso e o teto, geralmente o dobro da altura convencional. Imagina só: em vez de ter uns 2,5 metros, você tem 5! A sensação de espaço é incrível, e a luz se espalha de um jeito mágico. Além disso, ele permite projetos de decoração super criativos, com lustres imponentes e paredes decoradas com quadros enormes. É um luxo que transforma qualquer ambiente!
1. Iluminação Natural Ampliada

A iluminação natural é um dos maiores benefícios do pé direito duplo. Com janelas maiores e mais altas, o sol invade o ambiente, criando uma atmosfera acolhedora e vibrante. Além de economizar energia, a luz natural melhora o nosso humor e bem-estar. E vamos combinar, uma casa bem iluminada é muito mais convidativa, né?
2. Sensação de Amplitude e Liberdade

Espaços amplos nos dão uma sensação de liberdade e bem-estar. Com o pé direito duplo, o ambiente parece respirar, sabe? A casa fica mais arejada e convidativa, perfeita para receber amigos e familiares. E para quem mora em apartamentos pequenos, essa é uma ótima forma de driblar a falta de espaço e criar uma atmosfera mais agradável.
3. Valorização do Imóvel

Investir em um pé direito duplo é uma excelente forma de valorizar o seu imóvel. Ele confere um ar de sofisticação e modernidade, tornando a casa mais atraente para futuros compradores. Além disso, ele permite projetos de decoração diferenciados, que podem agregar ainda mais valor ao imóvel. Então, se você pensa em vender a casa no futuro, essa é uma ótima estratégia.
4. Possibilidade de Integração de Ambientes

O pé direito duplo facilita a integração de ambientes, como a sala de estar e a sala de jantar. Essa integração cria um espaço mais amplo e funcional, perfeito para quem gosta de receber amigos e familiares. Além disso, ela permite uma melhor circulação de pessoas e facilita a interação entre os diferentes espaços da casa. Imagina que delícia cozinhar e conversar com os amigos ao mesmo tempo?
5. Impacto Visual e Design Arrojado

O pé direito duplo é um elemento arquitetônico que chama a atenção e confere um toque de personalidade à casa. Ele permite a criação de projetos de decoração ousados e criativos, com lustres imponentes, paredes decoradas com quadros e esculturas, e até mesmo jardins verticais. É uma forma de expressar o seu estilo e transformar a sua casa em um verdadeiro lar.
6. Maior Conforto Térmico

Em casas com pé direito duplo, o ar quente tende a subir, criando um ambiente mais fresco e agradável. Isso é especialmente importante em regiões quentes, onde o calor pode ser um problema. Além disso, a ventilação natural é facilitada, o que contribui para um maior conforto térmico. E vamos combinar, uma casa fresquinha é tudo de bom, né?
7. Flexibilidade no Uso do Espaço

Com um pé direito duplo, você tem mais flexibilidade para usar o espaço da forma que quiser. Pode criar um mezanino para um escritório ou biblioteca, instalar um balanço para as crianças, ou até mesmo construir um segundo andar no futuro. As possibilidades são infinitas! E vamos combinar, ter um espaço versátil é muito bom, né?
8. Aconchego e Elegância em Cada Detalhe
O pé direito duplo, com a escolha certa de acabamentos e cores, pode deixar o ambiente super aconchegante e elegante. Imagine uma lareira imponente, um tapete macio e uma iluminação suave. Tudo isso contribui para criar uma atmosfera relaxante e convidativa. E vamos combinar, uma casa aconchegante é tudo o que a gente precisa, né?
9. Integração com a Natureza
O pé direito duplo permite uma maior integração com a natureza, através de grandes janelas e portas de vidro que se abrem para o jardim ou varanda. Essa integração traz mais luz, ventilação e contato com o verde, criando um ambiente mais saudável e agradável. E vamos combinar, ter a natureza por perto faz toda a diferença, né?
10. Luminárias e Decorações Suspensas
Com um pé direito duplo, você pode usar e abusar de luminárias e decorações suspensas. Lustres, pendentes, guirlandas e até mesmo plantas podem ser penduradas no teto, criando um efeito visual incrível. E vamos combinar, uma iluminação bem planejada faz toda a diferença, né?
11. Galeria de Arte Particular
Paredes amplas pedem quadros e obras de arte que valorizem o espaço. Com o pé direito duplo, você tem a oportunidade de criar uma verdadeira galeria de arte particular, com obras que refletem o seu estilo e personalidade. E vamos combinar, ter uma casa com a sua cara é muito bom, né?
12. Biblioteca Vertical Imponente
Amantes da leitura podem aproveitar o pé direito duplo para criar uma biblioteca vertical imponente, com prateleiras que vão do chão ao teto. Além de ser funcional, a biblioteca vertical confere um toque de sofisticação e cultura ao ambiente. E vamos combinar, ter um cantinho para relaxar e ler um bom livro é tudo de bom, né?
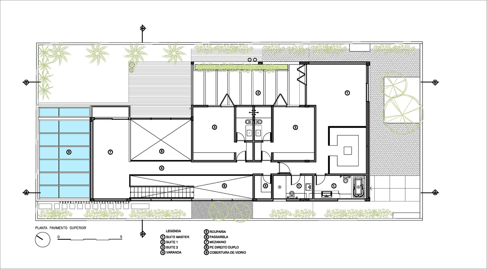
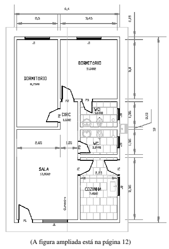
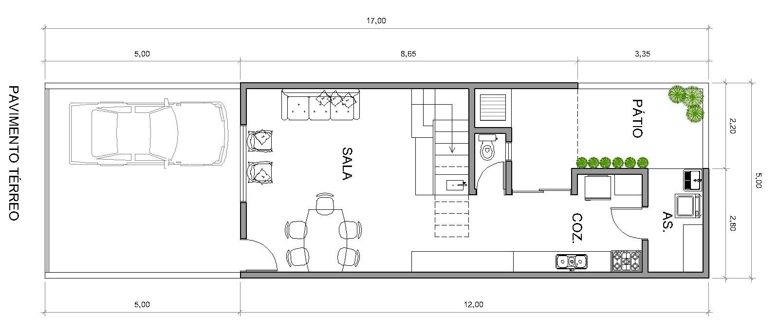
Ideias de Planta Baixa para Pé Direito Duplo

Imagem / Fonte: www.iprojetei.com.br

Imagem / Fonte: archshop.com.br

Imagem / Fonte: archshop.com.br

Imagem / Fonte: www.iprojetei.com.br

Imagem / Fonte: www.projetoacessivel.com.br

Imagem / Fonte: www.pinterest.com

Imagem / Fonte: archshop.com.br

Imagem / Fonte: www.iprojetei.com.br

Imagem / Fonte: archshop.com.br

Imagem / Fonte: br.pinterest.com

Imagem / Fonte: archshop.com.br

Imagem / Fonte: br.pinterest.com

Imagem / Fonte: blog.archtrends.com

Imagem / Fonte: archshop.com.br

Imagem / Fonte: www.plantapronta.com.br
![]()
Imagem / Fonte: archshop.com.br

Imagem / Fonte: br.pinterest.com

Imagem / Fonte: archshop.com.br

Imagem / Fonte: www.iprojetei.com.br
Para te ajudar a visualizar tudo isso, preparei uma tabela com as vantagens e desvantagens do pé direito duplo:
| Vantagens | Desvantagens |
|---|---|
| Iluminação natural ampliada | Custo de construção mais elevado |
| Sensação de amplitude e liberdade | Maior dificuldade de manutenção |
| Valorização do imóvel | Maior consumo de energia (ar condicionado) |
| Possibilidade de integração de ambientes | Pode gerar eco em ambientes grandes |
| Impacto visual e design arrojado | Requer planejamento cuidadoso da iluminação |
Guia Prático: Como Aproveitar ao Máximo o Seu Pé Direito Duplo
Agora que você já conhece os benefícios do pé direito duplo, que tal algumas dicas para aproveitá-lo ao máximo?
- Planeje a iluminação: Invista em luminárias que valorizem a altura do pé direito e criem diferentes atmosferas.
- Use cores claras: As cores claras refletem a luz e ampliam o espaço.
- Aproveite as paredes: Decore as paredes com quadros, espelhos ou revestimentos que valorizem a altura do pé direito.
- Invista em cortinas: As cortinas ajudam a controlar a entrada de luz e a criar um ambiente mais aconchegante.
- Use plantas: As plantas trazem vida e cor ao ambiente, além de purificarem o ar.
Dica extra: Se você tem crianças em casa, instale redes de proteção nas janelas e sacadas para garantir a segurança de todos.
Dúvidas das Leitoras (FAQ)
O pé direito duplo é indicado para qualquer tipo de casa?
Não necessariamente. Ele é mais indicado para casas grandes, com ambientes integrados. Em casas pequenas, pode criar uma sensação de desproporção.
Qual a altura ideal para um pé direito duplo?
Geralmente, a altura ideal varia entre 5 e 6 metros. Mas o ideal é consultar um arquiteto para definir a altura ideal para o seu projeto.
O pé direito duplo aumenta muito o custo da construção?
Sim, ele aumenta o custo da construção, pois exige materiais e mão de obra mais especializada. Mas o investimento vale a pena, pois ele valoriza o imóvel e proporciona um maior conforto e bem-estar.
Como fazer a manutenção de um pé direito duplo?
A manutenção de um pé direito duplo pode ser um pouco mais difícil, pois exige equipamentos e profissionais especializados. Mas com um bom planejamento e os cuidados certos, é possível manter o ambiente sempre impecável.
Quais os estilos de decoração que combinam com pé direito duplo?
O pé direito duplo combina com diversos estilos de decoração, como o moderno, o industrial, o rústico e o clássico. O importante é escolher um estilo que reflita a sua personalidade e que valorize o espaço.
Para não esquecer: Consulte sempre um arquiteto ou designer de interiores para te ajudar a planejar e executar o seu projeto de pé direito duplo. Eles poderão te dar as melhores dicas e soluções para o seu espaço!

