Uma planta baixa para banheiro 2×2 com chuveiro e lavatorio transforma 4m² em um espaço funcional e confortável. Vamos combinar: o segredo está na distribuição inteligente das peças.
Como distribuir chuveiro, lavatório e vaso em apenas 4 metros quadrados
A verdade é a seguinte: Em 2×2 metros, cada centímetro conta. Você não pode desperdiçar espaço com layout errado.
O grande segredo? Concentre as peças em duas paredes opostas. Isso libera o centro do banheiro para você se movimentar sem esbarrar em tudo.
Pode confessar: Já viu banheiros minúsculos que parecem um labirinto? A solução é simples: box de 90×90 cm em uma parede, lavatório e vaso na outra.
Aqui está o detalhe: Segundo normas de ergonomia, o vaso precisa de 20 cm livre em cada lado. Isso garante conforto real, não apenas no papel.
Olha só: Com essa estratégia, você ganha uma área de circulação de pelo menos 70 cm no centro. Parece pouco, mas faz toda diferença na rotina.
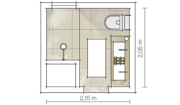
Em Destaque 2026: Um banheiro de 2,00 x 2,00 metros (4 m²) oferece um espaço excelente para um layout confortável e funcional, com a estratégia principal de distribuir as peças em duas paredes para otimizar a circulação central.
O Segredo do Banheiro 2×2: Conforto e Estilo em 4m²
Vamos combinar: o banheiro pequeno é uma realidade na maioria dos lares brasileiros hoje em dia, especialmente em apartamentos e casas mais compactas. Mas, pode confessar, quem nunca sonhou em ter um espaço funcional e lindo, mesmo com pouco metro quadrado?
A verdade é a seguinte: um banheiro de 2×2 metros, que totaliza 4 m², não é um problema, é uma oportunidade. Com o planejamento certo e as dicas de quem entende do riscado, ele pode se transformar no seu cantinho de relaxamento e praticidade. É sobre isso que a gente vai conversar agora, amiga!
Destaques e Benefícios: Um Banheiro Pequeno com Alma de Gigante
Olha só, quando a gente fala em otimizar um banheiro 2×2, estamos buscando mais do que apenas encaixar as peças. Queremos um espaço que respire, que seja fácil de usar e que transmita aquela sensação gostosa de bem-estar. Não é só estética, é pura funcionalidade.
Um bom projeto para seu banheiro compacto garante que cada centímetro seja aproveitado ao máximo. Você ganha em circulação, em organização e, claro, em beleza. O objetivo é que você se sinta à vontade, sem esbarrar em nada ou se sentir apertada. É o seu refúgio particular, afinal.
Para te ajudar a visualizar, separei algumas medidas essenciais que fazem toda a diferença:
| Item | Medida Ideal |
|---|---|
| Box de Chuveiro | 90×90 cm a 1,00×1,00 m |
| Bancada do Lavatório | 70 cm a 80 cm (para circulação) |
| Espaço Vaso Sanitário | 20 cm de cada lado (livre) |
| Largura Total para Vaso | 70 cm a 80 cm (mínimo) |
| Largura da Bancada | 60 cm a 70 cm (mínimo) |

Projeto de Banheiro Pequeno: Layout Ideal para 2×2 Metros
O grande segredo? A distribuição inteligente das peças. Para um banheiro de 2×2 metros, a estratégia que a gente mais usa e que funciona super bem é a de distribuir o vaso sanitário, o lavatório e o chuveiro em apenas duas paredes. Isso libera o centro do ambiente.
Ao concentrar os itens essenciais, você cria um fluxo de circulação muito mais livre e confortável. Pense no seu dia a dia: você entra, usa o vaso, lava as mãos, toma banho. Esse caminho precisa ser fluido, sem obstáculos. É a base para um projeto de banheiro pequeno que realmente funciona.

Layout para Banheiro Quadrado com Chuveiro e Lavatório
Aqui está o detalhe: o banheiro quadrado de 2×2 metros se beneficia muito de um layout linear ou em ‘L’. Por exemplo, você pode colocar o vaso sanitário e o lavatório em uma parede, e o chuveiro na parede adjacente.
Essa configuração permite que o centro do banheiro permaneça livre para movimentação, o que é crucial para não dar aquela sensação de aperto. O box de chuveiro, por exemplo, pode ficar no fundo, aproveitando um dos cantos, enquanto a bancada do lavatório se estende pela parede mais próxima da porta.

Medidas Mínimas para Banheiro 2×2: O Que Você Precisa Saber
Pode confessar: a gente sempre fica na dúvida sobre as medidas exatas, né? Mas para um banheiro 2×2, existem padrões que garantem conforto e segurança. O box de chuveiro ideal mede 90×90 cm, mas se der, um de 1,00×1,00 m é um luxo que vale a pena considerar.
Para o lavatório, a bancada deve ter 70 cm a 80 cm de largura para você ter espaço para se movimentar sem aperto. Já o vaso sanitário precisa de, no mínimo, 20 cm de espaço livre em cada lado. Isso significa que a área total reservada para o vaso deve ser de, pelo menos, 70 cm a 80 cm de largura. Essas são as medidas que fazem a diferença na prática, amiga!

Otimização de Espaço no Banheiro: Soluções para Ambientes Compactos
Mas preste atenção: otimizar não é só sobre onde colocar as coisas, mas como. As portas de correr são uma ótima solução para economizar espaço interno, já que não ocupam a área de abertura da porta tradicional. Elas são um verdadeiro pulo do gato em banheiros pequenos.
Dica de expert: Invista em nichos embutidos na parede do chuveiro ou acima do vaso. Eles são perfeitos para guardar produtos e evitam que você precise de prateleiras que roubam espaço. É funcional e ainda dá um toque de design!
Outra ideia é usar prateleiras flutuantes ou armários suspensos. Quanto mais você tira do chão, mais leve e amplo o ambiente parece. A gente precisa de espaço para viver, e não para acumular tralha, certo?

Design Funcional para Banheiro 2×2: Como Maximizar o Conforto
A verdade é a seguinte: um banheiro pequeno pode ser super confortável e elegante. A escolha de cores e materiais é fundamental. Cores claras e espelhos grandes não são apenas bonitos, eles são ferramentas poderosas para ampliar a sensação visual do ambiente.
Um espelho que ocupa quase toda a parede acima da bancada, por exemplo, duplica o espaço e reflete a luz, deixando tudo mais iluminado e arejado. Além disso, pense em louças sanitárias compactas e torneiras de parede, que liberam espaço na bancada. Para mais detalhes sobre medidas de banheiro, vale a pena pesquisar!

Soluções para Banheiro 2×2: Dicas Práticas de Organização
Olha só: um banheiro organizado é um banheiro que parece maior e mais convidativo. Use cestos organizadores dentro dos armários, separe por categorias (maquiagem, produtos de cabelo, higiene pessoal). A gente sabe que a bagunça visual pesa, né?
Aposte em toalheiros verticais ou ganchos discretos atrás da porta. Mantenha a bancada o mais livre possível, com apenas o essencial à vista. Menos é mais, especialmente em espaços compactos. Essa disciplina na organização faz milagres pela percepção do espaço.

Como Planejar um Banheiro Compacto com Chuveiro e Lavatório
Para planejar sem erro: comece desenhando a planta baixa em escala. Use os dados que te dei sobre as medidas mínimas e a estratégia das duas paredes. Simule a abertura da porta, o espaço para se secar depois do banho, o acesso ao vaso.
Considere a posição das tubulações existentes para evitar quebras desnecessárias, o que pode encarecer a obra. E não se esqueça da iluminação! Uma boa luz faz toda a diferença para um ambiente parecer mais amplo e acolhedor. Para inspirações de paleta de cores para banheiros, explore as tendências.

Ideias de Layout para Banheiro 2×2: Inspirações Visuais
Agora, a parte gostosa: imaginar seu banheiro pronto! Que tal um layout onde o box de chuveiro ocupa uma parede inteira no fundo, com um nicho embutido para shampoos? Na parede lateral, a bancada com cuba esculpida e um espelho gigante que vai do teto ao balcão.
Outra ideia é ter o vaso sanitário logo na entrada, em uma parede, e na parede oposta, a bancada do lavatório com um armário suspenso embaixo. O chuveiro, nesse caso, ficaria no canto oposto ao vaso. O importante é que a circulação seja sempre prioridade, garantindo que você tenha espaço para se movimentar sem nenhum aperto.
Mais Inspirações para Você

Branco gelo com toques de madeira clara.

Luz quente refletida no espelho sem moldura.

Box de vidro fosco com detalhe em preto fosco.

Piso grande assentado na diagonal.

Nichos no revestimento guardando produtos.

Torneira preta mate sobre mármore branco.

Porta de correr desaparecendo na parede.

Toalhas dobradas sobre bancada minimalista.

Plantinha suspensa no cantinho do lavatório.

Textura do concreto queimado na parede.

Cesta de vime escondida sob a pia.

Faixa de LED quente embaixo do espelho.

Cabideiro invisível atrás da porta.
3 Dicas Extras Que Vão Transformar Seu Banheiro 2×2
Vamos combinar: o diabo mora nos detalhes.
E nesses 4m², cada centímetro conta.
Por isso, anote essas três estratégias que fazem a diferença na prática.
- O segredo da iluminação: Abandone o ponto único no teto. Instale um espelho com LED embutido e um spot direcionado para o box. A luz lateral elimina sombras no rosto e amplia o ambiente visualmente.
- O truque do armazenamento invisível: Use nichos no box (em vez de prateleiras) e opte por um lavatório com gaveta ou porta-objetos embutido. Cada item guardado na parede libera o chão.
- A jogada do piso: Coloque peças grandes (60×60 cm) na diagonal. O efeito ótico ‘puxa’ os cantos, fazendo o espaço parecer mais amplo do que realmente é. Teste antes com um software gratuito.
Perguntas Frequentes Sobre Banheiros 2×2
Qual o tamanho mínimo do box para um banheiro 2×2?
O ideal é 90×90 cm, mas você pode ir até 1,00×1,00 m se usar porta de correr.
A verdade é a seguinte: abaixo de 80×80 cm, o conforto no banho fica comprometido. Seguir a norma NBR 15575 garante segurança e usabilidade.
Dá para colocar máquina de lavar em um banheiro de 4m²?
Sim, mas exige planejamento cirúrgico.
Você precisará de um lavatório compacto (de 50 cm) e um box de canto de 80×80 cm. Reserve um vão de 60×60 cm para a máquina, sempre próximo ao ralo. Pode confessar: vale mais a pena um lavabo separado?
Quanto custa, em média, reformar um banheiro 2×2 no Brasil?
Entre R$ 8.000 e R$ 15.000, dependendo do acabamento.
Olha só: a mão de obra qualificada representa cerca de 40% desse valor. Material básico (louça, piso, revestimento) fica na faixa de R$ 4.000. Invista em um bom hidráulico – é a garantia contra dor de cabeça futura.
Seu Projeto Começa Aqui
Dominar esses 4m² é uma questão de estratégia, não de sorte.
Cada decisão, da porta ao piso, impacta diretamente no seu conforto diário.
Use as medidas e dicas como seu guia, mas não tenha medo de adaptar à sua rotina.
Um banheiro pequeno bem resolvido vale mais que um grande mal planejado.
Qual será a primeira mudança que você vai implementar no seu espaço?

