Pensando em renovar a cozinha e não sabe por onde começar? A planta baixa é o primeiro passo para ter o ambiente dos sonhos. Descubra 5 modelos de planta baixa de cozinha que vão te inspirar!

Por que a Planta Baixa da Cozinha é Tão Importante?
Sabe aquele ditado, “a pressa é inimiga da perfeição”? Pois é, na reforma da cozinha, ele se aplica totalmente. A planta baixa é o mapa do tesouro que vai te guiar para evitar erros caros e garantir um espaço funcional e lindo. Imagina só, comprar armários que não cabem ou ter que refazer toda a instalação elétrica porque a geladeira ficou do lado errado? Fica tranquila, com um bom planejamento, você evita essas dores de cabeça.

A planta baixa não é só um desenho técnico, é a materialização das suas ideias e necessidades. É ali que você define a disposição dos eletrodomésticos, a circulação, o tamanho dos armários e até a posição da pia. E o melhor de tudo é que, com ela em mãos, fica muito mais fácil visualizar o resultado final e fazer os ajustes necessários antes de começar a obra. Vamos combinar, ninguém quer ter surpresas desagradáveis no meio do caminho, né?
Dicas Avançadas para Interpretar a Planta Baixa da sua Cozinha
1. Utilize Softwares de Design de Interiores
2. Imprima a Planta para Anotações Visuais
3. Consulte um Profissional Especializado
4. Priorize a Ergonomia
5. Aplique o Conceito do Triângulo de Trabalho
Aplicações Práticas da Planta Baixa

Cenário 1: Reforma da Cozinha
Cenário 2: Compra de Móveis Planejados
Cenário 3: Instalação de Eletrodomésticos
1. Cozinha Linear: Simples, Funcional e Charmosa
A cozinha linear, também conhecida como cozinha em linha, é um dos modelos mais populares, principalmente em apartamentos e casas com pouco espaço. Ela se caracteriza por ter todos os elementos (pia, fogão, geladeira e armários) dispostos em uma única parede. Parece simples, né? Mas com criatividade e um bom planejamento, dá para criar um ambiente super funcional e charmoso.

Vantagens da Cozinha Linear:
- Otimização de espaço: Ideal para ambientes pequenos, pois aproveita ao máximo uma única parede.
- Facilidade de circulação: Deixa o restante do ambiente livre, facilitando a circulação de pessoas.
- Custo mais baixo: Geralmente, é um modelo mais econômico, pois exige menos revestimentos e instalações.
- Fácil limpeza: Por ser compacta, a limpeza se torna mais rápida e prática.

Dicas para Cozinhas Lineares:
- Aproveite a altura: Invista em armários aéreos para aumentar o espaço de armazenamento.
- Use cores claras: Cores claras e neutras ajudam a ampliar o ambiente e deixá-lo mais iluminado.
- Integre com a sala: Se possível, integre a cozinha com a sala, criando um ambiente mais amplo e social.
- Invista em iluminação: Uma boa iluminação é fundamental para deixar a cozinha mais funcional e agradável. Use spots, fitas de LED e luminárias pendentes para criar diferentes cenários.

Produtos que Combinam com Cozinhas Lineares:
- Cooktop: O cooktop é uma ótima opção para cozinhas lineares, pois ocupa menos espaço que um fogão tradicional. Modelos da Brastemp e Electrolux são ótimas opções.
- Forno elétrico de embutir: Assim como o cooktop, o forno elétrico de embutir otimiza o espaço e deixa a cozinha mais moderna.
- Refrigerador Slim: Modelos slim de geladeira são mais estreitos e se encaixam perfeitamente em cozinhas lineares.
- Bancada estreita: Uma bancada estreita pode servir como apoio para refeições rápidas ou como área de preparo de alimentos.

Eu já morei em um apartamento com cozinha linear e, sinceramente, adorei! O segredo é investir em organização e aproveitar cada cantinho. Use nichos, prateleiras e organizadores de gavetas para manter tudo em ordem. E não se esqueça de escolher eletrodomésticos compactos e multifuncionais.
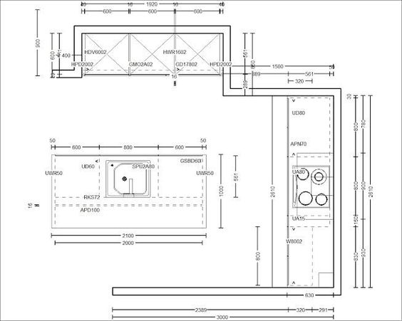
2. Cozinha em “L”: Versatilidade e Integração
A cozinha em “L” é um modelo super versátil que se adapta a diferentes tamanhos e formatos de ambientes. Ela se caracteriza por ter os elementos dispostos em duas paredes perpendiculares, formando um “L”. Essa configuração permite criar diferentes áreas de trabalho e facilita a circulação. Pois é, a cozinha em “L” é uma ótima opção para quem busca funcionalidade e integração.

Vantagens da Cozinha em “L”:
- Flexibilidade: Se adapta a diferentes tamanhos e formatos de ambientes.
- Criação de áreas de trabalho: Permite criar diferentes áreas de trabalho, como área de preparo, área de cocção e área de limpeza.
- Facilidade de circulação: Facilita a circulação de pessoas, pois distribui os elementos em duas paredes.
- Integração com outros ambientes: Pode ser integrada com a sala de jantar ou sala de estar, criando um ambiente mais amplo e social.

Dicas para Cozinhas em “L”:
- Aproveite o canto: O canto da cozinha em “L” pode ser um desafio, mas com as soluções certas, dá para aproveitá-lo ao máximo. Use armários de canto giratórios ou gavetas com divisórias para organizar panelas e utensílios.
- Defina o triângulo de trabalho: O triângulo de trabalho é um conceito que define a relação entre a pia, o fogão e a geladeira. O ideal é que esses três elementos formem um triângulo, facilitando o fluxo de trabalho na cozinha.
- Use cores e materiais contrastantes: Para dar um toque de personalidade à cozinha, use cores e materiais contrastantes nos armários, revestimentos e bancadas.
- Invista em uma boa coifa: A coifa é fundamental para eliminar odores e vapores da cozinha, principalmente se ela for integrada com outros ambientes.

Produtos que Combinam com Cozinhas em “L”:
- Pia dupla: Uma pia dupla é super prática para lavar louça e preparar alimentos ao mesmo tempo.
- Fogão com forno embutido: O fogão com forno embutido otimiza o espaço e deixa a cozinha mais funcional.
- Armários planejados: Armários planejados são ideais para cozinhas em “L”, pois permitem aproveitar cada cantinho e criar um ambiente personalizado.
- Ilha central: Se o espaço permitir, uma ilha central pode ser um ótimo complemento para a cozinha em “L”, servindo como área de preparo, bancada para refeições rápidas ou até mesmo como um espaço para receber amigos e familiares.
Eu acho a cozinha em “L” super charmosa! Ela permite criar um ambiente acolhedor e funcional, perfeito para quem gosta de cozinhar e receber amigos em casa. Só que, é importante planejar bem a disposição dos elementos para garantir uma boa circulação e evitar que o espaço fique congestionado.
3. Cozinha em “U”: Conforto e Funcionalidade ao Alcance das Mãos
A cozinha em “U” é um modelo que oferece muito espaço de armazenamento e área de trabalho, ideal para quem adora cozinhar e precisa de um ambiente funcional. Ela se caracteriza por ter os elementos dispostos em três paredes, formando um “U”. Imagina só, tudo ao seu alcance, sem precisar se deslocar muito? Pois é, a cozinha em “U” é sinônimo de conforto e praticidade.

Vantagens da Cozinha em “U”
- Muito espaço de armazenamento: Oferece muito espaço de armazenamento em armários e gavetas.
- Ampla área de trabalho: Proporciona uma ampla área de trabalho para preparar alimentos e cozinhar.
- Facilidade de acesso: Facilita o acesso aos elementos da cozinha, pois tudo está ao alcance das mãos.
- Ideal para cozinheiros: Perfeita para quem adora cozinhar e precisa de um ambiente funcional e bem equipado.
Dicas para Cozinhas em “U”:
- Planeje a circulação: É importante planejar a circulação na cozinha em “U” para evitar que o espaço fique congestionado. Deixe um espaço livre de pelo menos 90 cm entre as bancadas.
- Use armários com portas de correr: Armários com portas de correr são uma ótima opção para cozinhas em “U”, pois economizam espaço e facilitam o acesso aos utensílios.
- Invista em iluminação: Uma boa iluminação é fundamental para deixar a cozinha em “U” mais funcional e agradável. Use spots, fitas de LED e luminárias pendentes para iluminar as áreas de trabalho.
- Personalize o ambiente: Use cores, materiais e acessórios que reflitam o seu estilo pessoal. Quadros, plantas e objetos decorativos podem dar um toque especial à cozinha.

Produtos que Combinam com Cozinhas em “U”:
- Cooktop com vários queimadores: Um cooktop com vários queimadores é ideal para quem gosta de cozinhar para muitas pessoas.
- Forno duplo: Um forno duplo permite assar dois pratos diferentes ao mesmo tempo, otimizando o tempo na cozinha.
- Armários com gavetas profundas: Armários com gavetas profundas são perfeitos para guardar panelas, potes e outros utensílios grandes.
- Bancada de granito: Uma bancada de granito é resistente, durável e fácil de limpar, ideal para cozinhas em “U”.
Eu sempre sonhei em ter uma cozinha em “U”! Acho que ela é perfeita para quem, como eu, ama cozinhar e precisa de um espaço organizado e funcional. Só que, é importante ter cuidado com a circulação para não deixar o ambiente apertado. Uma dica é usar cores claras e espelhos para ampliar o espaço.
4. Cozinha com Ilha: Elegância e Convivência
A cozinha com ilha é um modelo que une elegância, funcionalidade e convivência. A ilha central pode servir como área de preparo, bancada para refeições rápidas, espaço para receber amigos e familiares ou até mesmo como um cooktop ou pia. Imagina só, cozinhar e interagir com as pessoas ao mesmo tempo? Pois é, a cozinha com ilha é perfeita para quem gosta de receber e compartilhar momentos especiais.

Vantagens da Cozinha com Ilha:
- Multifuncionalidade: A ilha central pode servir para diversas funções, como área de preparo, bancada para refeições rápidas, cooktop, pia ou espaço para receber amigos.
- Integração com outros ambientes: A cozinha com ilha geralmente é integrada com a sala de jantar ou sala de estar, criando um ambiente mais amplo e social.
- Design moderno: A ilha central confere um toque de modernidade e elegância à cozinha.
- Valorização do imóvel: Uma cozinha com ilha pode valorizar o imóvel, tornando-o mais atraente para compradores.

Dicas para Cozinhas com Ilha:
- Defina o tamanho da ilha: O tamanho da ilha deve ser proporcional ao tamanho da cozinha. Deixe um espaço livre de pelo menos 90 cm ao redor da ilha para garantir uma boa circulação.
- Escolha o material da bancada: A bancada da ilha pode ser de diferentes materiais, como granito, mármore, madeira ou Corian. Escolha um material resistente, durável e fácil de limpar.
- Invista em iluminação: A iluminação da ilha deve ser funcional e decorativa. Use luminárias pendentes, spots e fitas de LED para criar diferentes cenários.
- Adicione acessórios: Adicione acessórios à ilha, como banquetas, gavetas, nichos e tomadas. Esses acessórios podem tornar a ilha mais funcional e prática.

Produtos que Combinam com Cozinhas com Ilha:
- Cooktop de indução: O cooktop de indução é seguro, eficiente e fácil de limpar, ideal para cozinhas com ilha.
- Coifa de ilha: A coifa de ilha é fundamental para eliminar odores e vapores da cozinha, principalmente se ela for integrada com outros ambientes.
- Bancada de madeira de demolição: Uma bancada de madeira de demolição confere um toque rústico e charmoso à cozinha com ilha.
- Banquetas altas: Banquetas altas são perfeitas para refeições rápidas na ilha ou para receber amigos e familiares enquanto você cozinha.
Eu acho a cozinha com ilha um luxo! Ela é perfeita para quem gosta de cozinhar e receber amigos em casa. Só que, é importante ter espaço suficiente para a ilha não atrapalhar a circulação. Uma dica é usar a ilha como divisória entre a cozinha e a sala, criando um ambiente integrado e funcional.
5. Cozinha Americana: Integração Total e Ambiente Social
A cozinha americana é um modelo que se integra totalmente com a sala de estar ou sala de jantar, criando um ambiente amplo e social. Ela se caracteriza pela ausência de paredes ou divisórias entre a cozinha e os outros ambientes. Imagina só, cozinhar, assistir TV e conversar com as pessoas ao mesmo tempo? Pois é, a cozinha americana é perfeita para quem gosta de interagir e compartilhar momentos com a família e os amigos.

Vantagens da Cozinha Americana:
- Integração total: Integra totalmente a cozinha com a sala de estar ou sala de jantar, criando um ambiente amplo e social.
- Maior interação: Permite maior interação entre as pessoas que estão na cozinha e as que estão nos outros ambientes.
- Sensação de amplitude: A ausência de paredes ou divisórias proporciona uma sensação de amplitude e leveza.
- Ideal para apartamentos pequenos: Perfeita para apartamentos pequenos, pois otimiza o espaço e cria um ambiente mais funcional.

Dicas para Cozinhas Americanas:
- Use revestimentos iguais: Use os mesmos revestimentos na cozinha e nos outros ambientes para criar uma sensação de continuidade e harmonia.
- Invista em uma boa iluminação: Uma boa iluminação é fundamental para delimitar os espaços e criar diferentes cenários. Use spots, fitas de LED e luminárias pendentes para iluminar a cozinha e os outros ambientes.
- Escolha móveis multifuncionais: Escolha móveis multifuncionais, como sofás-cama, mesas dobráveis e estantes modulares, para otimizar o espaço e criar um ambiente mais versátil.
- Mantenha a organização: A cozinha americana exige organização constante, pois está sempre à vista. Use organizadores de gavetas, prateleiras e nichos para manter tudo em ordem.

Produtos que Combinam com Cozinhas Americanas:
- Bancada de madeira: Uma bancada de madeira confere um toque acolhedor e charmoso à cozinha americana.
- Cadeiras confortáveis: Cadeiras confortáveis são perfeitas para refeições rápidas na bancada ou para receber amigos e familiares.
- Eletrodomésticos modernos: Eletrodomésticos modernos, como geladeira side by side, cooktop de indução e forno elétrico de embutir, deixam a cozinha americana mais funcional e elegante.
- Coifa potente: Uma coifa potente é essencial para eliminar odores e vapores, evitando que se espalhem pela casa.
Eu adoro a cozinha americana! Acho que ela é perfeita para quem gosta de receber amigos e familiares em casa. Só que, é importante ter cuidado com a organização para não deixar a bagunça à vista. Uma dica é usar cores claras e espelhos para ampliar o espaço e criar uma sensação de leveza.
Como Escolher o Melhor Modelo de Planta Baixa para Sua Cozinha?
Escolher o modelo ideal de planta baixa para a sua cozinha pode parecer uma tarefa difícil, mas com algumas dicas e um bom planejamento, você vai encontrar a opção perfeita para as suas necessidades e o seu estilo. Imagina só, ter uma cozinha linda, funcional e que te inspire a cozinhar todos os dias? Pois é, com as dicas certas, você vai realizar esse sonho!

1. Analise o Tamanho e o Formato do Ambiente:
O primeiro passo é analisar o tamanho e o formato do ambiente disponível para a cozinha. Cozinhas pequenas e estreitas geralmente se adaptam melhor aos modelos lineares ou em “L”. Já cozinhas maiores e quadradas podem receber ilhas ou modelos em “U”. É importante medir o espaço com precisão e considerar a altura do pé direito para aproveitar ao máximo o ambiente.
2. Considere Suas Necessidades e Hábitos:
Pense em como você usa a cozinha no dia a dia. Você cozinha com frequência? Recebe muitos amigos e familiares em casa? Precisa de muito espaço de armazenamento? Suas respostas vão te ajudar a definir o modelo ideal de planta baixa. Se você adora cozinhar, por exemplo, uma cozinha em “U” ou com ilha pode ser a melhor opção. Se você mora sozinho e não cozinha muito, uma cozinha linear pode ser suficiente.
3. Defina o Triângulo de Trabalho:
O triângulo de trabalho é um conceito fundamental no planejamento de cozinhas. Ele define a relação entre a pia, o fogão e a geladeira. O ideal é que esses três elementos formem um triângulo, facilitando o fluxo de trabalho na cozinha. Ao definir o triângulo de trabalho, leve em consideração a sua altura e a sua mão dominante para evitar movimentos desnecessários.
4. Pense na Iluminação:
A iluminação é um fator crucial para o conforto e a funcionalidade da cozinha. Invista em diferentes tipos de iluminação, como iluminação geral, iluminação de tarefa e iluminação decorativa. A iluminação geral deve ser uniforme e iluminar todo o ambiente. A iluminação de tarefa deve ser direcionada para as áreas de trabalho, como a pia e o fogão. A iluminação decorativa pode ser usada para criar diferentes cenários e dar um toque especial à cozinha.
5. Escolha os Materiais e Revestimentos:
Os materiais e revestimentos da cozinha devem ser resistentes, duráveis e fáceis de limpar. Opte por materiais como granito, mármore, porcelanato e aço inox. Para as paredes, use tintas laváveis ou revestimentos cerâmicos. E não se esqueça de escolher cores e texturas que reflitam o seu estilo pessoal.
6. Contrate um Profissional:
Se você não se sente seguro para planejar a sua cozinha sozinho, contrate um profissional, como um arquiteto ou um designer de interiores. Ele poderá te ajudar a definir o modelo ideal de planta baixa, escolher os materiais e revestimentos, e criar um projeto personalizado para as suas necessidades e o seu orçamento. Fica tranquila, o investimento em um profissional pode te poupar muita dor de cabeça no futuro.
Guia Passo a Passo para Criar sua Planta Baixa de Cozinha
Criar a planta baixa da sua cozinha pode parecer complicado, mas com este guia passo a passo, você vai ver que é mais fácil do que imagina. Imagina só, ter a sua cozinha planejada nos mínimos detalhes, do jeitinho que você sempre sonhou? Pois é, com este guia, você vai realizar esse sonho!
- Meça o espaço: Meça o comprimento, a largura e a altura do ambiente com precisão. Anote as medidas em um papel ou em um software de desenho.
- Desenhe o contorno: Desenhe o contorno do ambiente em escala, representando as paredes, as portas e as janelas.
- Posicione os elementos: Posicione os elementos da cozinha (pia, fogão, geladeira, armários) no desenho, respeitando o triângulo de trabalho e a circulação.
- Defina as medidas: Defina as medidas dos elementos da cozinha (largura, altura, profundidade) e anote-as no desenho.
- Acrescente os detalhes: Acrescente os detalhes da cozinha (tomadas, interruptores, pontos de água e gás) no desenho.
- Revise o desenho: Revise o desenho com atenção para verificar se todas as medidas estão corretas e se não há nenhum erro.
- Apresente o projeto: Apresente o projeto para um profissional (arquiteto, designer de interiores ou marceneiro) para obter um orçamento e iniciar a execução.
Dicas Extras para uma Cozinha Funcional e Aconchegante

- Invista em utensílios de qualidade: Panelas, talheres e outros utensílios de qualidade fazem toda a diferença na hora de cozinhar.
- Use organizadores de gavetas: Organizadores de gavetas ajudam a manter tudo em ordem e facilitam o acesso aos utensílios.
- Aproveite a luz natural: A luz natural é a melhor amiga da cozinha. Use cortinas claras e espelhos para ampliar a luminosidade do ambiente.
- Adicione plantas: Plantas trazem vida e alegria para a cozinha. Escolha espécies que se adaptem bem a ambientes internos e que não exijam muitos cuidados.
- Personalize a decoração: Quadros, fotos, objetos de cerâmica e outros objetos decorativos podem dar um toque especial à cozinha.
Receita Bônus: Bolo de Cenoura Cremoso para Celebrar a Nova Cozinha
E para celebrar a sua nova cozinha, que tal preparar um delicioso bolo de cenoura cremoso? Essa receita é super fácil de fazer e vai deixar a sua casa com um cheirinho irresistível.
Ingredientes:
- 3 cenouras médias
- 4 ovos
- 1 xícara de óleo
- 2 xícaras de açúcar
- 2 xícaras de farinha de trigo
- 1 colher de sopa de fermento em pó
Cobertura:
- 1 lata de leite condensado
- 1 caixa de creme de leite
- 4 colheres de sopa de chocolate em pó
Modo de Preparo:
- No liquidificador, bata as cenouras, os ovos e o óleo até obter uma mistura homogênea.
- Em uma tigela, misture o açúcar e a farinha de trigo.
- Adicione a mistura do liquidificador à tigela e misture bem.
- Acrescente o fermento em pó e misture delicadamente.
- Despeje a massa em uma forma untada e enfarinhada.
- Leve ao forno pré-aquecido a 180°C por cerca de 40 minutos.
- Enquanto o bolo assa, prepare a cobertura: em uma panela, misture o leite condensado, o creme de leite e o chocolate em pó.
- Leve ao fogo baixo, mexendo sempre, até obter uma consistência cremosa.
- Retire o bolo do forno, espere esfriar e cubra com a cobertura.
Dúvidas das Leitoras (FAQ)

Qual o tamanho ideal para uma ilha de cozinha?
O tamanho ideal depende do espaço disponível e da sua necessidade. Deixe pelo menos 90 cm de espaço livre ao redor para circulação.
Quais os melhores materiais para bancadas de cozinha?
Granito, mármore, Corian e aço inox são ótimas opções. Eles são resistentes, duráveis e fáceis de limpar.
Como aproveitar o espaço em uma cozinha pequena?
Invista em armários aéreos, prateleiras, nichos e eletrodomésticos compactos. Use cores claras e espelhos para ampliar o ambiente.
Qual a altura ideal para a bancada da cozinha?
A altura ideal é de 90 cm para quem tem estatura média. Ajuste a altura de acordo com a sua necessidade.
Como escolher a coifa ideal para a minha cozinha?
Considere o tamanho da cozinha, o tipo de fogão e a frequência com que você cozinha. Escolha um modelo com boa capacidade de sucção e baixo nível de ruído.
Cozinhas planejadas são realmente mais caras?
Inicialmente, sim, mas oferecem melhor aproveitamento do espaço e personalização, evitando gastos futuros com adaptações.
Qual a distância ideal entre a ilha e os armários da cozinha?
O ideal é deixar um espaço de 90 cm a 1 metro para permitir uma circulação confortável e segura.
Para não esquecer: Antes de começar qualquer reforma, pesquise bastante, inspire-se em diferentes projetos e, se possível, consulte um profissional. Uma cozinha bem planejada faz toda a diferença no dia a dia!
E aí, gostou das dicas? Espero que este artigo tenha te inspirado a criar a cozinha dos seus sonhos. Pois é, com um bom planejamento e as escolhas certas, você vai transformar a sua cozinha em um ambiente funcional, aconchegante e cheio de personalidade.

